逍遥阁qm论坛入口,五一楼凤qm论坛,一杯茶论坛全国兼职,全国qm交流论坛网站

首页 新闻动态行业动态

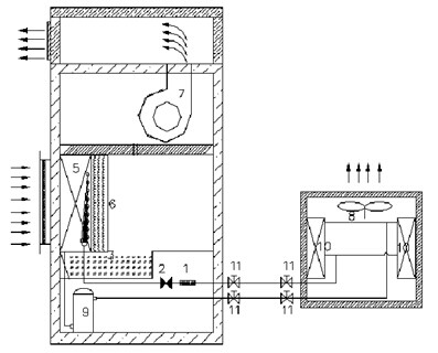
调温型除湿机组成及作用

作者:匿名 来源:网络 2019-06-28 09:00 阅读 0

 

调温型除湿机适合高温环境中使用,在一些温度变化比较大,温度比较高的场合下,使用调温型除湿机的话,对于降低环境内温度和湿度会有比较显著和良好的效果,给我们的生产和工作带来的极大的方便。 

调温型除湿机的湿装置由除湿蛋和承座组成。


6f363e6132.jpg


所谓除湿蛋,就是一种多孔的,透气较好的的陶瓷外壳,除湿蛋的里面是一个容器,里面有吸收空气水汽的物质,本体底面设一穿孔,用一塞套封闭,该外壳外面得局部涂设湿度感应材料,以显示除湿蛋的吸湿状况;该承座为托持除湿蛋的座体,其中承座得为夹状结构,由左右夹板组成,两夹板形成的夹口作为除湿蛋的承窝,夹板上得设有透视窗,透视窗内设有湿度成应材,以显示除湿蛋的吸湿状况。 

调温型除湿机与一般型除湿机相比,在制冷系统中,增设了一个水冷冷凝器(水冷式)或一个室外风冷冷凝器(分体风冷式),再热器面积可减小。这里面有两种做法,一种是将再热器置于水冷或风冷冷凝器前面,与后者串联布置,并分多路控制,以此调节对冷却除湿后空气的加热量,从而达到控制出风温度的目的。 另外,水冷式设比例式三通水量调节阀,调节冷却水量,风冷式设冷凝风量控制,从而使冷凝器带走多余的热量。

另一种做法是将再热器置于水冷或风冷冷凝器后面,也是串联布置,只通过水冷式的水量调节阀调节冷却水量或风冷式的冷凝风量控制,来调节冷凝器带走的热量,从而到达调节出风温度的目的。

转载请注明出处:  http://m.vgdamg.cn/news/show-657.html

1.本站遵循行业规范,任何转载的稿件都会明确标注作者和来源;2.本站的原创文章,请转载时务必注明文章作者和来源,不尊重原创的行为我们将追究责任;3.作者投稿可能会经我们编辑修改或补充。4.用户投稿或转载的文章,发布目的仅为传递信息,并不代表本网赞同其观点和对其真实性负责。

相关文章
  • 除湿效果不佳?家用除湿机这些使用细节,您知道吗?

    除湿效果不佳?家用除湿...

    2022-08-10 10:00

  • 如何对付雨天室内烦人的潮湿感?1个妙招就足够!

    如何对付雨天室内烦人的...

    2022-08-10 10:00

  • 2022中国制冷展 | 百奥除湿将携全新“环境温湿度解决方案”亮相

    2022中国制冷展 |...

    2022-08-10 10:00

  • 百奥大放光彩,闪耀2022中国制冷展

    百奥大放光彩,闪耀20...

    2022-08-10 10:00

核电站专用除湿机
快速产品导航
电话咨询

400-995-9029

(早8:30-晚10:00)